Nouvelle clinique Saint-Roch / Montpellier

PROGRAMME : Construction d’une nouvelle clinique, siège du groupe OC santé – maternité, urgences, SOS mains, blocs, radiologie, consultations, administration

SURFACE : 23 500 m² SDO (hors stationnement souterrain)

ANNÉE : 2012

COÛT : 43,5 M€ HT

MAITRE D’OUVRAGE : concours

MISSION : architecture ad lib | Setrhi Setae (mandataire) | Y.Mornet | ISMS programmation

EQUIPE : architecture ad lib

La future clinique est située dans la Zac des Grisettes (éco-quartier primé), au sud de l’agglomération montpelliéraine.

Le projet propose une organisation spatiale compacte, qui dialogue avec le contexte

  • Côté Zac : une écriture urbaine rythmée et calée sur la programmation des services.
  • Côté entrée de ville : de grandes façades, avec double-peau vitrée faisant office de mur anti-bruit.

L’ensemble de la clinique est écrit autour de patios (système matriciel), et permet une progression dans l’établissement du public (accueil/entrées/consultations) côté tramway, au privé (patio personnel hospitalier), puis les espaces techniques (cour logistique).

Ce principe permet également une évolutivité dans le temps, car la parcelle n’est pas entièrement utilisée, et le système matriciel peut s’agrandir.

La gestion des flux est optimisée avec 4 accès distincts

  • Entrée principale clinique Saint Roch patients / visiteurs coté parvis à partir du patio
  • Entrée dédiée Consultations à partir du patio

Ces deux premiers flux sont dirigés vers les différentes parties de l’établissement à partir du patio d’entrée / espace de distribution puis :

  • Accès logistique unique vers cour logistique – Accès côté rue de la Madeleine
  • Accès Urgences / Patients Couchés – Accès coté avenue du Colonel Pavelet

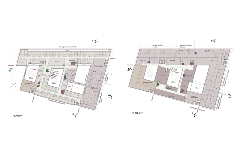
Les entités programmatiques sont les suivantes :

  • Urgences
  • Imagerie
  • Bloc opératoire
  • Bloc obstétrical
  • Ambulatoire / Chimiothérapie
  • Ambulatoire
  • Hébergement
  • Logistique
  • Cuisine – Restaurant du personnel
  • Administration
  • Locaux techniques
  • Maison Médicale
  • Parc de stationnement en sous-sol et surface.
Retour en haut