55 Logements et une halle de marché / Aubervilliers

PROGRAMME : 55 logements et un marché couvert à Aubervilliers (93)

SURFACE : 4 376 m2 (dont logements 3 582 m²)

ANNÉE : 2012

COÛT : 6.17 m€ HT

MAITRE D’OUVRAGE : Altarea Cogedim

MISSION : Maîtrise d’œuvre complète (projet arrêté)

EQUIPE : architecture ad lib

Le projet se situe sur l’ancien site du marché Montfort, sur une parcelle située entre la rue Cochennec et le boulevard Vaillant Couturier.

Le long d’une rue créée, nouvel espace public joignant les 2 voies précitées, le projet explore une certaine forme de densité.

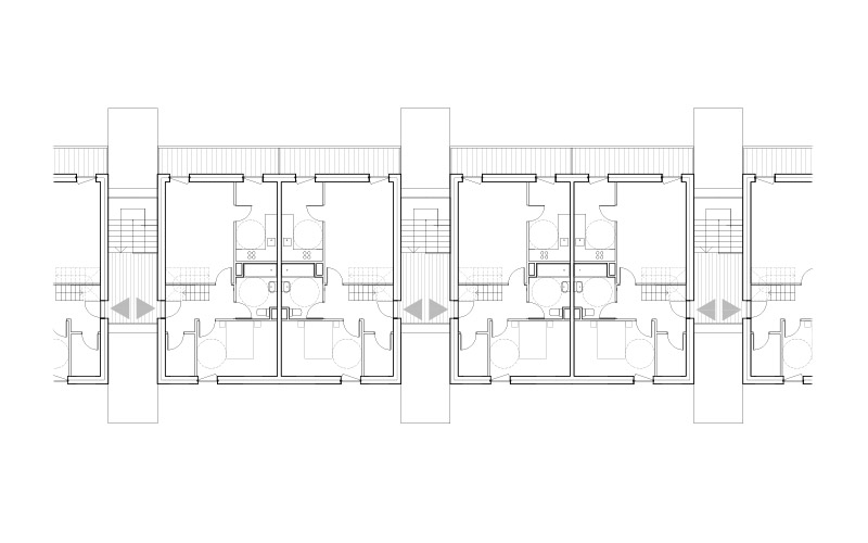
Côté boulevard Vaillant Couturier, un collectif à R+4 et attique en reprend la densité faubourienne, alors que le long de la rue nouvelle, des collectifs intermédiaires explorent une forme d’habitat se rapprochant de l’habitat pavillonnaire et individuel au-delà de la rue Cochennec. Pour ce faire, celui-ci déploie une variété d’espaces extérieurs ; jardins individuels au RDC, grands balcons suspendus à R+1 et une large terrasse pour les duplex à R+2 & 3.

Une halle de marché est intégrée en RDC reprenant les usages de l’ancien marché. De nouvelles surfaces commerciales sont créées. Un grand parking souterrain dessert logements et commerces et permet l’installation hebdomadaire du marché dans la rue.

Retour en haut