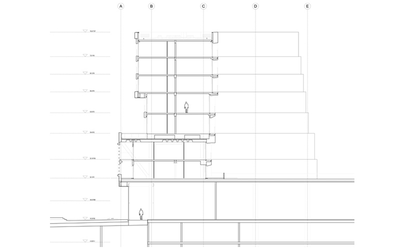
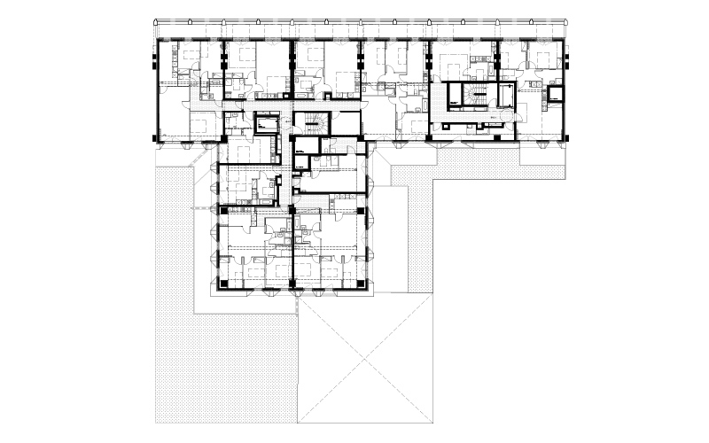
Logements N4 Entrepôt Calberson / Paris

PROGRAMME : 61 logements, BBC H&E sur les anciens entrepôts du boulevard Mac Donald à Paris

SURFACE : 4 727 m² SPL | 4 067 m² SHAB

ANNÉE : 2008-2011 : études & PC+PC mod
2012 : Démarrage travaux
2015 : Livraison

MAITRE D’OUVRAGE : Icade promotion logement pour 3F

COÛT : 7.4 M€ HT

MISSION : maîtrise d’œuvre complète

EQUIPE : JDS architects | architecture ad lib | BE TCE: Arcoba | H&E: Alto | acoustique : Acouphen

La N4 est un bâtiment résolument ancré dans son tissu urbain. Ses façades, tenant un front bâti sur le boulevard Mac Donald et ouvertes sur le jardin en cœur d’îlot, réinterprètent l’immeuble traditionnel parisien.

Leur mise en relief particulière, faite de balcons et de décrochés, amène chaque appartement à respirer d’une manière singulière.
A l’intérieur les logements jouissent de vues cadrées sur le paysage urbain du quartier, et les jeux d’ombres crées par ces baies si singulières viennent au gré des heures et des saisons altérer notre perception du dehors.

Retour en haut