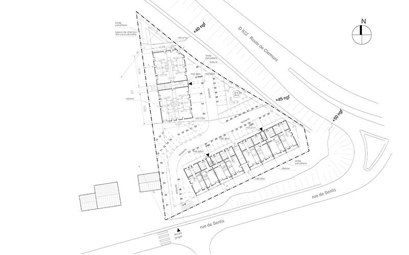
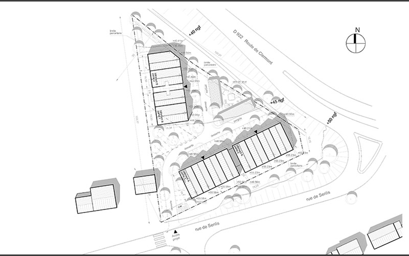
Logements collectifs / Beaumont-sur-Oise

PROGRAMME : 38 logements collectifs / Beaumont-sur-Oise
RT2020

SURFACE : 2 227 m2 shab (2270 m2 sdp)

ANNÉE : Obtention PC 2023

MAITRE D’OUVRAGE : Demathieu Bard Immobilier

COÛT : 9 m€ HT

MISSION : Maitrise d’œuvre complète

EQUIPE : architecture ad lib, Etudes et automates (Bet tce), ARD (v.r.d.)

Retour en haut