60 logements rue Gabriel Péri / Saint-Denis

PROGRAMME : 60 logements rue Gabriel Péri au centre-ville de Saint-Denis.
Surfaces commerciales en rez-de-chaussée.

SURFACE : 4 302 m² sdp / 3 950 m² shab

ANNÉE : 2019

MAITRE D’OUVRAGE : Emerige

COÛT : 7,4 m € HT

MISSION : Maîtrise d’œuvre complète

EQUIPE : architecture ad lib / Félix medina avec Joseph Le Net architecte

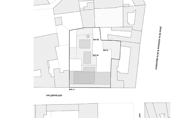
Le terrain est situé en face du Musée d’Art et d’Histoire Paul Eluard de la ville de Saint-Denis, et à proximité du parc de la Légion d’Honneur. Côté rue, le projet redonne un gabarit à la rue Gabriel Péri et doit converser avec le bâtiment du musée, de l’autre côté de la rue, un ancien Carmel et sa Chapelle.

Il abrite deux façons d’habiter.

  • Sur une partie du linéaire les espaces jours donnent sur la rue. Le principe est inversé avec les espaces nuit sur l’autre partie du linéaire de la façade sur rue, calme, de sorte à donner vie à l’ensemble.
  • Côté cour, une organisation de la parcelle permet d’optimiser les surfaces de sol en pleine terre, et donc l’introduction de grands sujets végétaux.

Plus de 30 % des terrasses accessibles seront végétalisées.

Retour en haut